PORZIONE DI CASA DI TESTA CON AMPIO TERRENO CIRCOSTANTE

Copermio, Colorno
€ 169.000

PORZIONE DI CASA DI TESTA CON AMPIO TERRENO CIRCOSTANTE

Copermio, Colorno

Prezzo: € 169.000
Case a schiera
3 Camere
3 Bagni
135 m²

COPERMIO: Vi proponiamo in vendita una porzione di casa di testa, immersa nella tranquillità della campagna e circondata da un terreno agricolo di circa 5000 mq. Situata in un caratteristico contesto a corte, questa proprietà garantisce serenità e totale privacy.

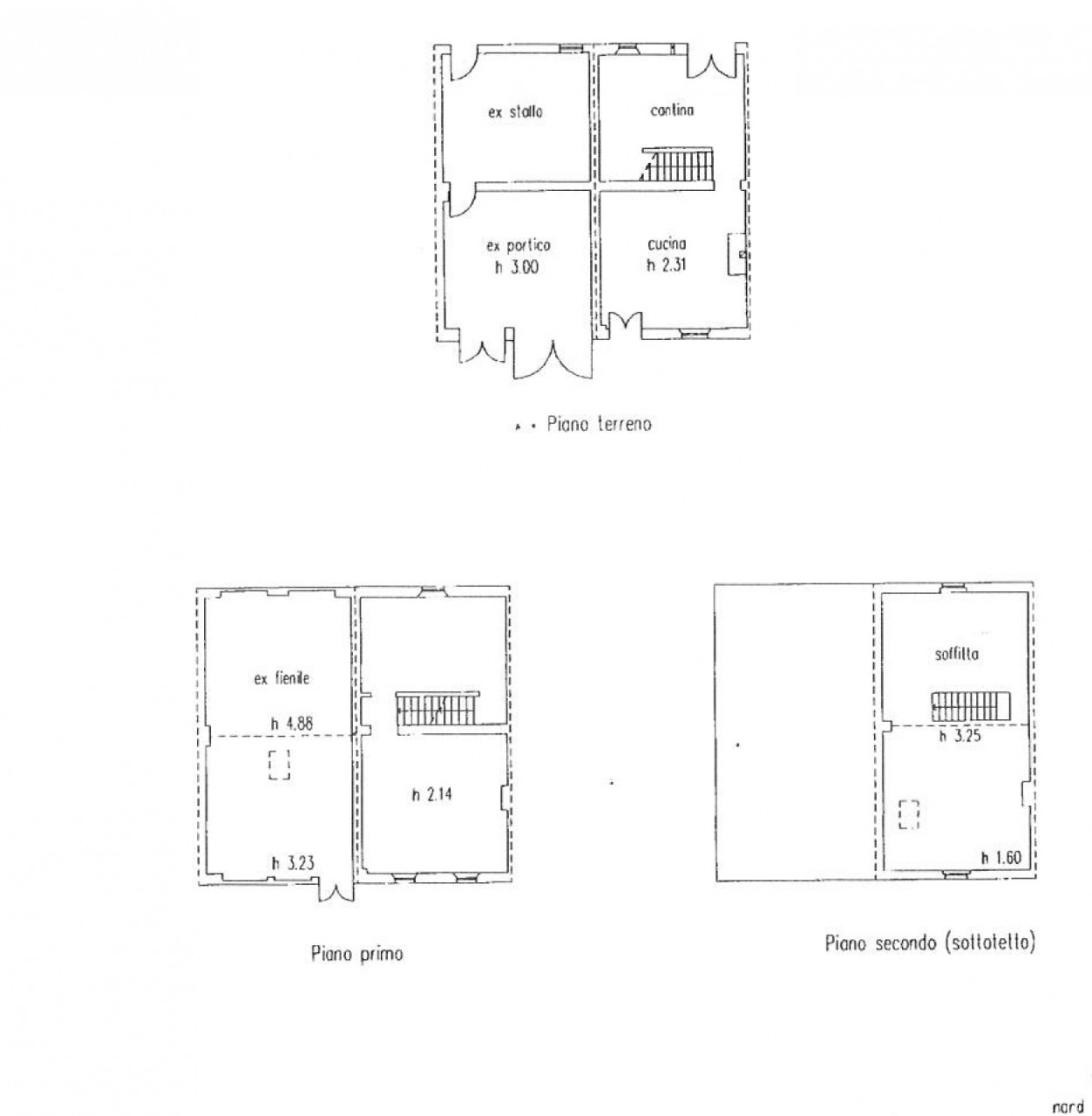
Oltre alla posizione riservata, ciò che rende questo immobile unico sono i diversi accessori a servizio dell’abitazione, come il garage di 26 mq e un magazzino di 72 mq, ideali per chi necessita di spazio extra.

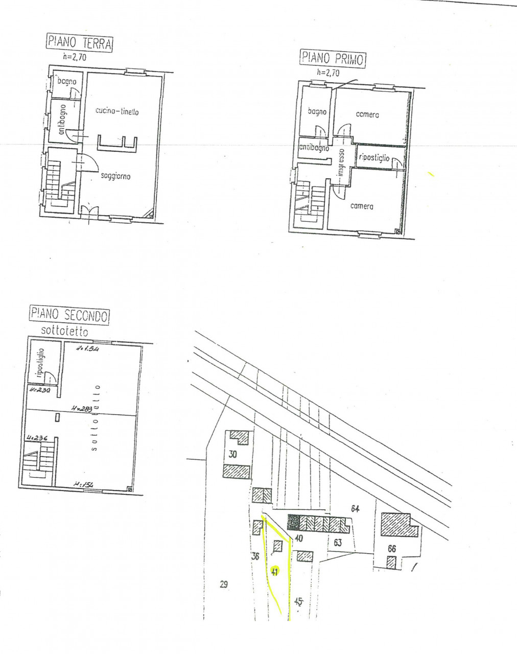
L’abitazione si sviluppa su tre livelli. Al piano terra troviamo un accogliente soggiorno con un elegante camino a legna, travi a vista e un affascinante arco in mattoni, che creano un’atmosfera rustica e raffinata. La cucina è ampia e abitabile. Completa il piano un bagno con doccia e una pratica zona dispensa/ripostiglio/lavanderia.

La zona notte, situata al primo piano, ospita due camere matrimoniali, di cui una con cabina armadio, e un bagno dotato di vasca.

Al secondo piano, infine, si trova una mansarda spaziosa e versatile, con un bagno dedicato e un grande ambiente open space che si presta a molteplici utilizzi, adattandosi a qualsiasi esigenza.

Questa proprietà è ideale per una famiglia e per chi ama affacciarsi e ammirare la bellezza della campagna, godendo ogni giorno di una vista rilassante e immersa nel verde.

ID: 4260108

Provincia: Parma

Comune: Colorno

Zona: Copermio

Dettagli della proprietà

ID della proprietà: HI-4260108
Tipo di proprietà: Case a schiera
Stato della proprietà: Vendita
Camere da letto: 3
Bagni: 3
Dimensione dell'area: 135 m²
Anno costruito: 1967

    RICHIEDI APPUNTAMENTO






    Recensione per PORZIONE DI CASA DI TESTA CON AMPIO TERRENO CIRCOSTANTE

    Avatar
    Valutazione complessiva:
    Quality of Property
    Location of Property
    Neighborhood
    Features
    Floor Plans
    Contenuto recensione:
    Accedi per lasciare una recensione
    × Come possiamo aiutarti?