TRILOCALE CON GIARDINO PRIVATO

Gainago, Torrile
€ 185.000

TRILOCALE CON GIARDINO PRIVATO

Gainago, Torrile

Prezzo: € 185.000
Appartamenti
2 Camere
1 Bagni
Si Garage
85 m²

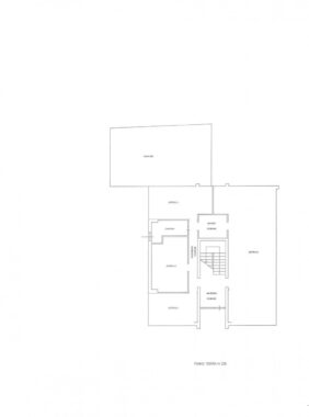
GAINAGO: Nel cuore di Gainago, un quartiere residenziale recentemente costruito, proponiamo in vendita uno splendido appartamento trilocale. L’immobile si distingue per una vista mozzafiato sulla campagna circostante e su un parchetto pubblico adiacente.

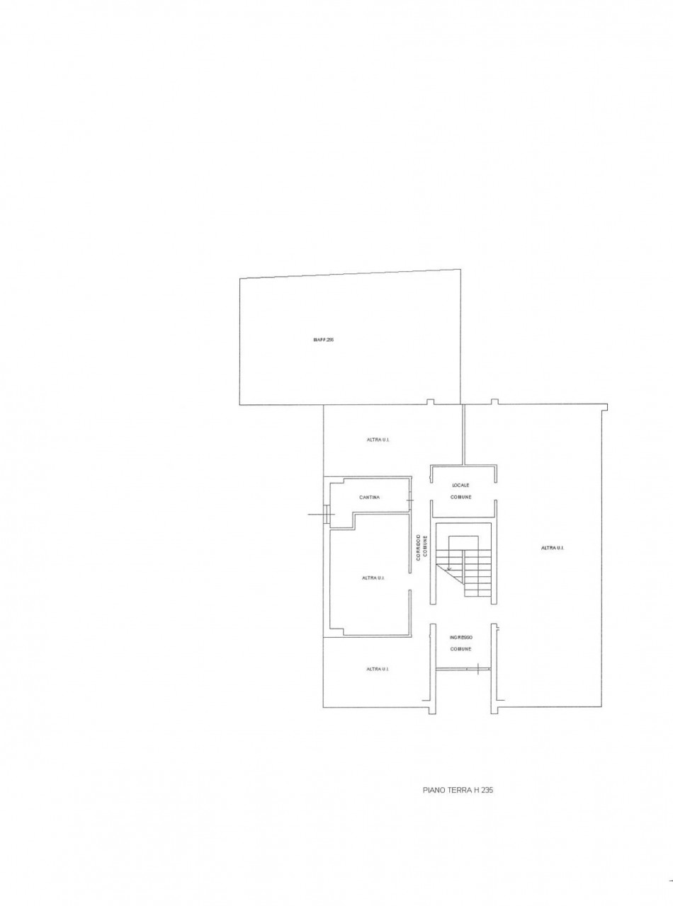
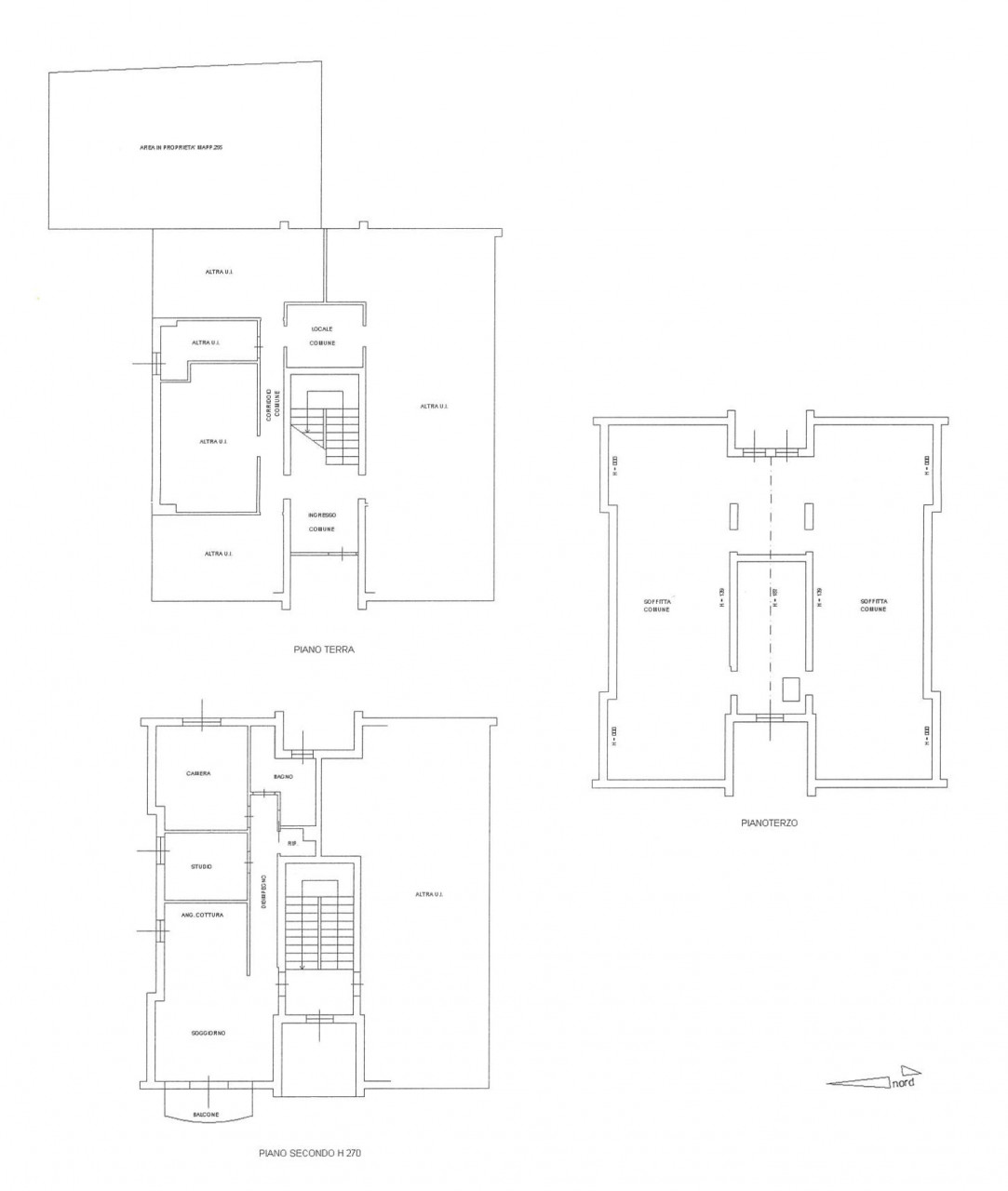
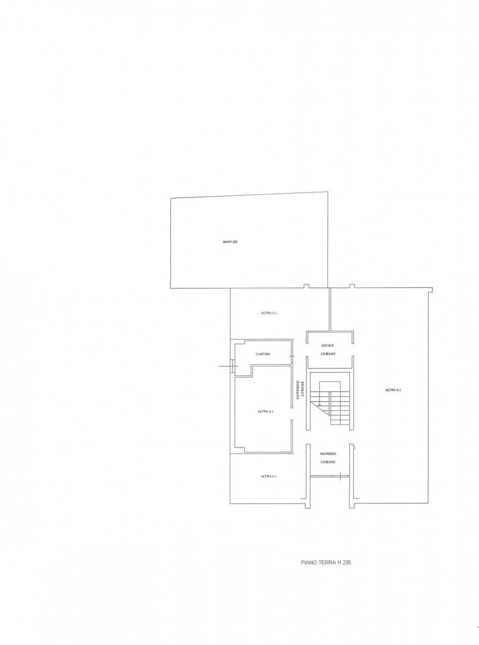
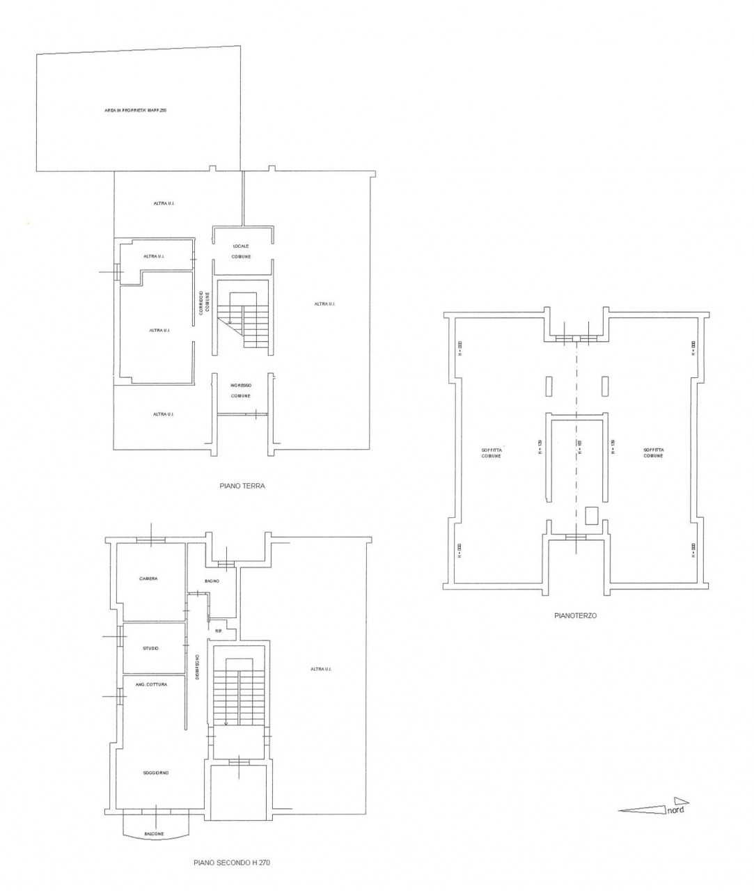
L’appartamento, situato al secondo piano di una graziosa palazzina composta da sole quattro unità abitative, offre spazi ben distribuiti. L’ingresso conduce alla zona giorno luminosa e moderna con salotto accogliente e cucina a vista spaziosa. Dal soggiorno si accede direttamente ad un terrazzino che regala panorami incantevoli.

La zona notte comprende una camera matrimoniale ampia e confortevole, una seconda camera singola ideale come studio o cameretta per bambini, oltre a un ripostiglio funzionale. Il bagno è dotato di una doccia ampia e moderna.

Uno dei punti forti della proprietà è il giardino privato di circa 200 mq: uno spazio perfetto per godere delle giornate all’aperto in compagnia degli amici o della famiglia oppure semplicemente ritagliarsi momenti di relax assoluto nella privacy più totale. Il giardino dispone anche di accesso indipendente dal retro dell’edificio ed è collegato direttamente al garage e alla zona ripostiglio/lavanderia.

Completano l’immobile la presenza del garage privato, cantina e posto auto riservati all’interno dell’area condominiale.

Contatta la nostra agenza per avere informazioni o per fissare un appuntamento per visitare l’immobile.

ID: 4633523

Provincia: Parma

Comune: Torrile

Zona: Gainago

Dettagli della proprietà

ID della proprietà: HI-4633523
Tipo di proprietà: Appartamenti
Stato della proprietà: Vendita
Camere da letto: 2
Bagni: 1
Garage: Si
Dimensione dell'area: 85 m²
Anno costruito: 2008

    RICHIEDI APPUNTAMENTO






    Recensione per TRILOCALE CON GIARDINO PRIVATO

    Avatar
    Valutazione complessiva:
    Quality of Property
    Location of Property
    Neighborhood
    Features
    Floor Plans
    Contenuto recensione:
    Accedi per lasciare una recensione
    × Come possiamo aiutarti?