QUADRILOCALE CON GIARDINO IN BIFAMILIARE

Sorbolo - Centro, Sorbolo Mezzani
€ 340.000

QUADRILOCALE CON GIARDINO IN BIFAMILIARE

Sorbolo - Centro, Sorbolo Mezzani

Prezzo: € 340.000
Appartamenti
3 Camere
3 Bagni
Si Garage
220 m²

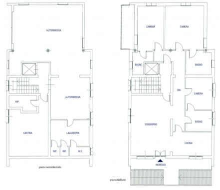
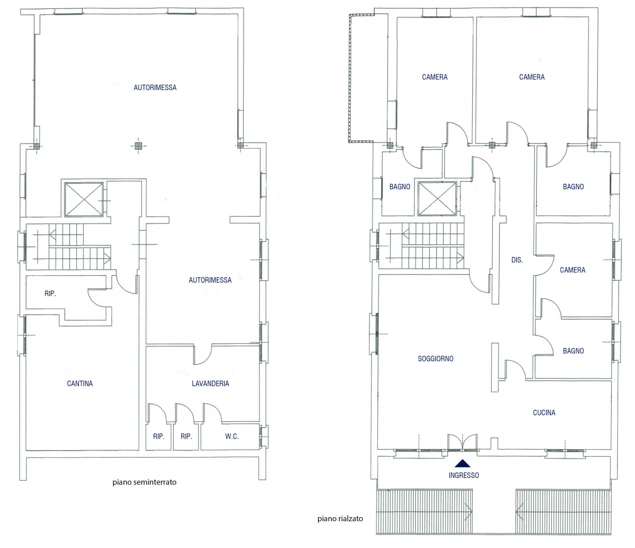
SORBOLO CENTRO: Vi proponiamo in vendita, nel cuore del centro cittadino, un appartamento quadrilocale di straordinaria eleganza e funzionalità. Situato all’interno di una bifamiliare con ingresso indipendente, questa soluzione abitativa offre comfort e privacy senza pari.

L’immobile si distingue per l’assenza totale di spese condominiali, garantendo così la massima libertà ai suoi residenti. L’ingresso dell’appartamento è accessibile sia dal fronte che da una parte laterale comune al secondo piano; ciò permette l’accesso ad un ampio giardino privato dove poter godere momenti di relax immersi nella natura, rendendo questo spazio ideale anche per le famiglie e gli amanti degli spazi aperti.

Completamente ristrutturato nel 2003 con materiali pregiati che combinano estetica e funzionalità, l’appartamento presenta un luminosissimo soggiorno caratterizzato da finestre generose dotate di inferiate in tutta l’abitazione; queste ultime non solo permettono il passaggio della luce naturale ma conferiscono anche calore all’ambiente domestico. La cucina abitabile si integra armoniosamente alla zona giorno ed è possibile separarla tramite vetrate scorrevoli per creare uno spazio esclusivo.

Il corridoio conduce verso la zona notte composta da tre camere matrimoniali ognuna dotata del proprio bagno privato; ogni suite rappresenta quindi un rifugio personale assicurando totale indipendenza agli occupanti. Due balconi completano quest’area offrendo ulteriori opportunità per godersi il panorama circostante.

Un aspetto particolarmente distintivo è la possibilità di trasformare una parte dell’appartamento in un monolocale autonomo grazie ai due ingressi esistenti: questo include propri servizi come angolo cottura attrezzabile, bagno con doccia e affaccio su balcone riservato.

La proprietà comprende inoltre ben tre cantine utilmente sfruttabili per contenere effetti personali o utensili vari. A disposizione troviamo anche locale tecnico, lavanderia dedicata oltre ad un bagno di servizio completo di doccia, uno spazio comune assegnato per il deposito biciclette e un posto auto di proprietà situato all’interno di un garage dotato di bascula automatizzata raggiungibile tramite ascensore diretto dal piano sotterraneo fino all’abitazione; il tutto contribuisce a elevare notevolmente lo standard qualitativo della vita quotidiana qui offerta. Questa proposta immobiliare costituisce pertanto una scelta perfetta per chi desidera vivere nella tranquillità senza rinunciare alle comodità tipiche della vita cittadina.

Se vi è piaciuta questa anticipazione non vi resta che fissare un appuntamento per visionare l’immobile oppure, potete vedere il video integrale dell’immobile direttamente sul nostro canale YouTube digitando nella ricerca SANPOLOIMMOBILIARE nella sezione QUADRILOCALI in BIFAMILIARE.

ID: 4268904

Provincia: Parma

Comune: Sorbolo Mezzani

Zona: Sorbolo – Centro

Dettagli della proprietà

ID della proprietà: HI-4268904
Tipo di proprietà: Appartamenti
Stato della proprietà: Vendita
Camere da letto: 3
Bagni: 3
Garage: Si
Dimensione dell'area: 220 m²
Anno costruito: 1967

    RICHIEDI APPUNTAMENTO






    Recensione per QUADRILOCALE CON GIARDINO IN BIFAMILIARE

    Avatar
    Valutazione complessiva:
    Quality of Property
    Location of Property
    Neighborhood
    Features
    Floor Plans
    Contenuto recensione:
    Accedi per lasciare una recensione
    × Come possiamo aiutarti?